These images are used in good faith. The copyright owner may contact this website at mail@hamptonwickhistory.org.uk
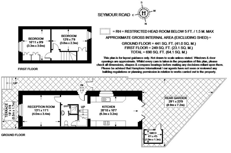
3 Seymour Road for sale May 2014










Estate Agent Publicity Material
These images are used in good faith. The copyright owner may contact this website at mail@hamptonwickhistory.org.uk
3 Seymour Road for sale May 2014